重庆

爱达尊御128平现代简约

发布时间:2022-03-19 10:42:19

3554
  • 户型:二居室
  • 面积:128㎡
  • 地址:哈西爱达尊御
  • 风格:现代简约
设计理念
无意识设计 物品民主化 美的民主化 形式追随功能
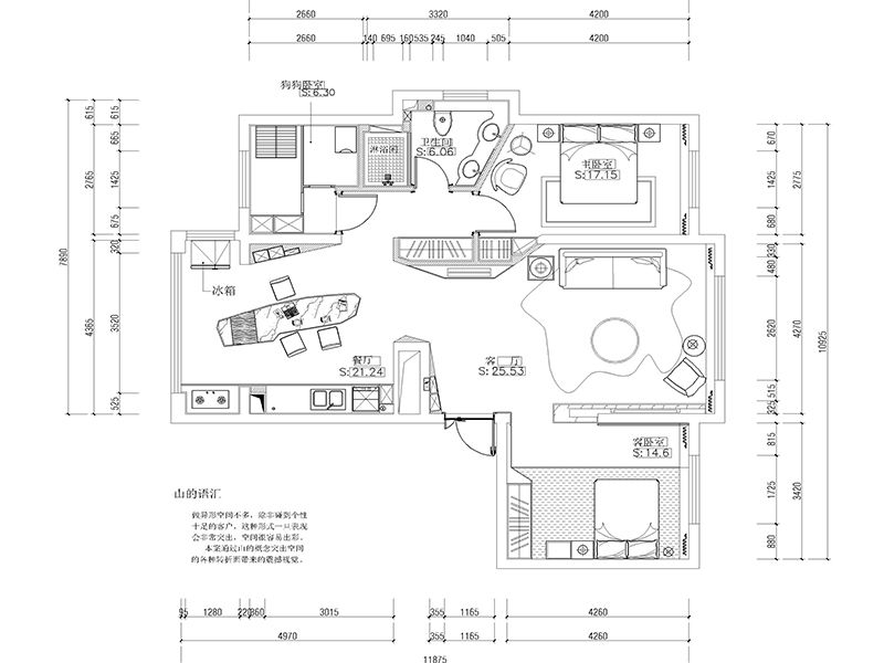
户型图
客厅
"生活与功能相结合 聚焦人的生活氛围 墙面背景别有洞天 空间光线宽敞唯美 将生活的画面定格"
餐厅
厨房
"整体空间体现自然 与环境理性结合 让居住者瞬间心情愉悦 空间内体现人与自然、环境的理性结合 对天然感的偏爱"
卧室
"空间以暖白为主基调 自然纯粹的感官 营造舒缓雅致与自在 诉说温暖的眷顾"
卫生间
书房
本案设计师
方林集团
方林装饰设计师
  • 从业25年
  • 案例55套

擅长风格:现代简约,美式风格,新中式风格

相似案例推荐

查看更多

简约而不简单

朱泓霖

万科十七英里192平现代简约风格

  • 四居室以上
  • 192㎡
  • 万科十七英里

"视觉上的体验赋予了它舒适、自由、温馨、时尚的属性 时刻彰显着深厚的生活内涵,浪漫随时闪现,优雅时时生发 在最平凡的时刻都能表达出满满的仪式感"

王诗蕊

华润置地万象府140平现代简约风格

  • 三居室
  • 140㎡
  • 华润置地万象府

热门装修攻略

查看更多
Copyright © 2000-2023 方林家居装饰有限公司
辽ICP备12003026号-4
网站备案信息

预约免费量房

免费上门精准测量规划

马上预约